藤本壮介氏が建築家としてデビュー間もない頃、田中仁氏はJINS高崎店の設計を藤本氏に託した。ロードサイド店の2店目として勝負をかけた計画だ。藤本氏の熱意と提案力に大きな手応えを感じたものの計画は白紙に。だがこの縁は、「T house」という藤本氏の初期代表作を呼んだ。(ここまでBUNGA NET編集部)
JINSのアイウエア事業がスタートしたのは2001年4月。立ち上げてすぐ、競合の出現により、売り上げが半減。入居先のデベロッパーの倒産による売上金未回収など、予想外の苦難が続いた。それでも何とか乗り越え、業界の常識を覆すような勝ち筋に、地方都市で手応えを感じ始めていた頃のことだった。
建築への興味が強くなった私は、趣味として建築雑誌を読み、建築に詳しい人と交流を持つ機会も増えていた。そんなある日、某建設会社の専務から「北海道出身で、将来が有望な若手建築家がいる」と教えられた。その名が藤本壮介さん(藤本壮介建築設計事務所)だった。





当時JINSは、福岡・天神に1号店を出店したのを皮切りに、東京・代官山、京都、神戸・三宮と立て続けに店舗展開を進めていた。そして、「地方では成功しない」とされていたビジネスモデルを、前橋市のロードサイドで実験的に導入したところ、関係者の予想を大きく裏切る成果を上げた。次なる出店場所として、同じく群馬県の高崎市で好立地が浮上し、契約も進めていた。
その新店舗の設計を誰に依頼しようかと考えていたとき、藤本さんの話を思い出し、紹介を経て、当時東京・東中野にあった彼の設計事務所を訪ねた。2002年のことだ。マンションの1階にある事務所の一室は、建築模型が所狭しと並べられており、空間そのものが彼の創造力を物語っていた。その場には、後に奥様となる女性スタッフと藤本さんがいた。
高崎店の計画について話をすると、藤本さんは即座に「ぜひお願いします」と快諾してくれた。まだ世に出る前の若き建築家だったが、その熱意と提案力には目を見張るものがあった。その後、彼は何案もの模型をつくって提案してくれた。どれも面白く魅力的で、実現への期待が高まっていた。
しかし…、残念ながら、地主の都合で土地の賃貸がかなわなくなり、計画は白紙に戻ってしまった。せっかく動き出したプロジェクトだったが、「申し訳ない」という気持ちで、藤本さんに中止を伝えることになった。
実兄への紹介で誕生した「T house」の大胆プラン
だが、その少し後、思わぬところで再び藤本さんと縁がつながった。ちょうど私の次兄が自宅の新築を検討しており、地元の設計士と打ち合わせを重ねていたのだが、どうにも納得のいく方向性が見いだせずにいた。
そこで藤本さんの話を兄にしたところ、「ぜひ話を聞いてみたい」と興味を持ち、私は再び藤本さんに連絡した。すると、再び「ぜひお願いします」との返事をいただき、あっという間に話はまとまり、2005年に「T house」という一軒の家が完成した。



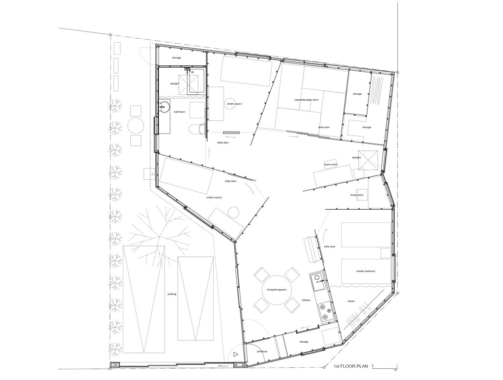
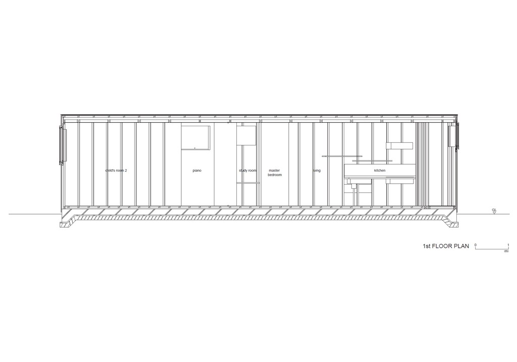
その家は常識を超えた大胆な設計で、もし自分だったら躊躇(ちゅうちょ)していたと思う。しかし、アートコレクターである兄がすべてをクリエイターに任せたからこそ、生まれた傑作なのかもしれない。この家は、藤本さんにとっても重要な転機になったように思う。
彼は2000年に「青森県立美術館」の公開コンペで、393件の応募の中から最終の2案に選出された。最終的には青木淳さんの設計案に決まったものの、無名の新人として2等に選ばれたことで世間からの注目を集めるようになった。実はこうした事実を後に知ったが、幸いにもその頃、藤本さんとJINS高崎店の計画案を通して知り合い、T houseへとつなぐことができた。
青森県立美術館の経験が、藤本さんにとっても建築家として飛躍するきっかけのひとつだったのだろう。そして、「T house」もその流れの中で評価されたひとつの仕事となった。ただし、実際にはとてもつつましい住宅であり、とにかくローコストを徹底したため、当時の設計料では新幹線代すら賄えたかどうか。そんなふうに感じるほどの仕事だったと思う。



それでも、「評価される仕事とは、そうした条件の中でも真摯に取り組んだ先にあるものだ」と強く感じたのを、今でもはっきりと覚えている。
私自身はというと、模型をたくさんつくってもらった挙げ句にプロジェクトを流してしまい、どこか“借り”が残っていた。だからこそ、いつか必ず藤本さんと仕事をしたい、という思いが心の中にずっとあった。だが、その機会がすぐに訪れることはなかった。
藤本氏の軌跡をたどれば、かつてのやり取りの中に種
そんな藤本壮介さんが、現在、東京・六本木の森美術館(六本木ヒルズ森タワー53階)にて、自身初となる大規模な個展を開催している(会期は7月2日~11月9日)。タイトルは「藤本壮介の建築:原初・未来・森」。活動初期から世界各地で進行中のプロジェクトまで、8つのセクションで構成され、約30年にわたる建築家としての歩みや思想を包括的に紹介する内容となっている。
展示には、模型や設計図面、竣工写真に加えて、実際に身体で体験できる大型模型やインスタレーション、モックアップ(試作モデル)も含まれており、建築関係者のみならず、誰もが藤本建築のエッセンスに触れることのできる展覧会となっている。

さらに、藤本さん自身による未来の都市像の提案も展示されており、環境への配慮、分断されたコミュニティの再構築、テクノロジーとの共生といった視点から、建築の存在意義と可能性について深い思索を促す構成となっている。
この展覧会の開催にあわせて7月6日(日)には、関連プログラムとしてシンポジウム「建築の可能性をめぐって―藤本壮介の建築を起点に」が東京・虎ノ門のTOKYO NODE HALL(虎ノ門ヒルズ ステーションタワー46階)で開催された。私も、そのプログラムの一部であるセッション2に登壇し、藤本さん、データサイエンティストで慶応大学教授の宮田裕章さんとともに建築と社会の未来について意見を交わす機会をいただいた。
登壇に当たっては、ここに記してきたような藤本さんとの出会い。まだ世に出る前の若き建築家と、JINSの店舗設計を通じて始まったご縁、T houseのこと、そしてその後の再会と協働に至るまでを振り返りながら、「建築の持つ力とは何か」についてお話しさせていただいた。
またディスカッションの中では、「建築とは何か」「建築と周辺環境との関係性」「その土地の文化を表現するのは“道路”なのではないか」「100年たっても廃れないものの価値とは何か」といった問いを、藤本さんや宮田さんに投げかけながら対話を深めた。
問いかけながら、私自身も多くのことを学ばせていただいた。お二人の知性と視点に導かれながら、建築が現代社会で果たし得る役割と、その先にある可能性について、大きな刺激と気づきを得た貴重な時間となった。



一方、セッション1では、妹島和世さん、塚本由晴さんという日本を代表する建築家のお二人が登壇され、本展の展示内容を起点に、藤本さんのこれまでの実践や思想、そして建築の未来について多角的な議論がなされた。
そして、大阪・関西万博の話題になると一層熱がこもっていたように見受けられた。(正直なところ)内容はとても高度で、建築の素人にはやや難解な部分も多かったが、それだけにこの領域の奥深さを強く実感させられた。
出会った当時の藤本さんが、こうした大舞台に立つまでの軌跡を思い返すと、あの模型だらけの事務所で交わした何気ないやり取りの中にも、確かな種があったのだと、改めて感じずにはいられない。(田中仁)
※次回は8月半ばに掲載予定


