JINSの店舗づくりに当たっては、経済合理性とは離れたところでも試行錯誤を重ね、JINSブランドを形づくってきた。「建築を通じて次の時代の可能性を探っていたのかもしれない」と振り返る田中仁氏を刺激し続けた建築家の1人が、スキーマ建築計画の長坂常氏だ。(ここまでBUNGA NET編集部)

最初にお会いしたのはいつだっただろうか。Gmailを検索すると、2010年12月16日に長坂常さんから「L Love」へのお礼メールが届いており、どうやら東京・代官山の奈良会館が最初だったようだ。
長坂さんといえば、ホームセンターで手に入る安価な材料(合板、波板、鉄骨など)や既存の流通システムを生かし、それを独自の発想で「デザイン」に転換する点が特徴だ。限られた予算の中で最大限の可能性を引き出す建築は、特に若い建て主や小規模店舗から支持を集めている。ただし、実際には見た目以上に手間がかかっており、印象よりもコストが高くつくかもしれない。
もうひとつ、長坂さんの建築に明確な特徴がある。それは、「色数が極端に少ない」 ことだ。白・グレー・黒といった無彩色や素材の地色のみで構成される空間が多く、派手な装飾や色彩はほとんど登場しない。これは単なる好みではなく、明確な思想に基づいたデザインなのだろう。
長坂さんは、建築を「完成品」としてではなく、「使い手とともに時間の中で完成していくもの」と捉えている。あえて色を抑えることで空間の印象を固定せず、季節や光、人の活動、家具やグラフィックといった他の要素が主役として際立つ余白をつくるのだ。また、彼は素材そのものの表情を信頼しており、塗装や装飾を施さず、コンクリート・鉄・ガラス・木・レンガといった素材本来の色と質感によって空間を成立させる。この考え方は、建築を背景として機能させ、商品や人の動きを引き立たせるという思想とも深く結びついているのだろう。さらに、この手法は、そぎ落とすことで空間に力を宿すという、彼ならではの美学でもある。
その後、2015年には東京・清澄白河の「ブルーボトルコーヒー」1号店や代官山の「DESCENTE BLANC(デサント ブラン)」を手がけ、建築界の新星として注目を浴びていった。長坂さんは、中村竜治さん(本連載第5回参照)や永山祐子さん(同第6回参照)と同世代で、彼らと親しい間柄でもあった。
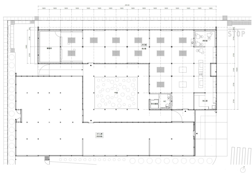
2016年、JINSは埼玉・上尾ロードサイド店の改装を決めた。この店舗は2004年4月に開店し、眼鏡・雑貨・カフェを組み合わせたライフスタイルショップの先駆けだった。しかし、飲食店を遠隔でマネジメントするすべを持たなかったため、改装を機に「スターバックス」に入居してもらうことにした。
改装に当たり設計を誰に依頼するか悩んだ末、長坂常さんにお願いすることにした。スケジュールの都合を心配されつつも、なんとか無事オープンに至った。この改装では、グラフィックデザインをKIGI(東京・渋谷)に依頼し、駐車場デザインも含めて統一感を図った。完成した店舗は長坂さんらしい、シンプルでありながら洗練された空間となった。さらに、これがJINSにとってスターバックスとの初めてのコラボレーションであり、後の共同出店につながる第一歩となった。



長坂さんのウェブサイトには、上尾店のリニューアルについてこう記されている。
「竣工後12年を迎えたJINS上尾店は、既存の眼鏡店とカフェがロの字を形成し、回廊と庭が心地よい雰囲気をつくっていた。ただし木の下見板で覆われた外壁のせいで、前面道路から商品や中庭、カフェが見えず、魅力を活かしきれていなかった。そこで外壁を撤去し、Low-Eペアガラスで覆い直すことで、道路側から中庭やカフェが一望でき、商品の存在感も高まった。さらに、スケルトン化を来訪者に感じ取ってもらうために、インテリアでは間仕切りをレンガで仕上げ、収納は家具として独立させ、空間に多様な要素を取り込む工夫をした」
前橋の商店街に「予定調和的な消費体験」を超える和菓子店
話は変わるが、前橋のまちづくりは今でこそ知られるようになったが、当初は誰も注目せず、興味を持たれることもなかった。
最初に動き出したプロジェクトは藤本壮介さん設計の「白井屋ホテル」だった。構想は2014年に始まったが、まちのビジョンが必要とされ、計画はなかなか進まなかった。そんな中、最初に完成したのは商店街にできた中村竜治さん設計の「GRASSA」である。その隣の空き店舗が売りに出た際、私は自ら購入せず、前橋で活動を共にしていたデザイン会社ナニラニ(東京・渋谷)の村瀬隆明さんに声をかけた。村瀬さんは躊躇(ちゅうちょ)なく購入を決め、「前橋にはお土産になるものが少ないので、和菓子店をやりたい」と語った。
店舗の中身は村瀬さんが立ち上げることになったが、設計は私の希望で長坂常さんに依頼した。まちづくりの一環として、一つひとつの建築にこだわりを込めたかったからだ。ただ、建築家が自由に設計すると街並みに統一感がなくなる懸念もあったため、前橋の歴史にもつながる赤レンガを共通デザインコードとすることを提案した。
長坂さんはすぐに現地を訪れ、その日のうちに「なかなかハードコアな商店街ですね」とメールをくれた。2016年5月のことだ。
建て主は村瀬さんであるにもかかわらず、私が口を出しすぎたことで、長坂さんから「今回の建て主はどなたでしょう?」と戸惑いの声をいただき、反省して以降は村瀬さんを中心に進めた。それでも長坂さんは思いをくみ取り、中村竜治さんや高濱史子さんと共に、商店街の連続性を意識したアイデアを出してくれた。和菓子店は「なか又 前橋本店」として2018年にオープンした。



長坂さんのウェブサイトには、当時の考えが次のように記されている。
「縮小社会において、かつての賑わいを取り戻すのは現実的ではない。むしろショッピングモールの予定調和的な消費体験を超える、新しい街のあり方が必要だ。ネットや車社会の変化を踏まえ、予定調和では満足できない人々の期待を受け止める街こそ、これからの商店街の役割である。その一例を、この小さな建物で考えたい」
日用品の比較検討から生まれたキッチンスポンジの眼鏡置き
その後、長坂さんにJINSの東京・銀座ロフト店の設計を依頼した。長坂さんは「まず眼鏡置きを考えましょう」と提案し、日用品を比較検討した結果、「Scotch Brite(スコッチ・ブライト)」のスポンジが最適と判断。スポンジが日常的なものであることから什器にはスチールラックを選び、不足する部分はカスタマイズすることになった。「スポンジの上に眼鏡」という発想には強い違和感を持ったが、結果として新鮮でおしゃれな店舗が2019年に生まれた。
次にお願いした函館の店舗では、卵パックにも使われる紙パルプを眼鏡用に成形し、「無印良品」のユニットシェルフに組み合わせるというアイデアが採用された。遠目には無印良品の売り場のように見える店舗だった。



この店舗について長坂さんは次のように述べている。
「JINSの店舗は入った瞬間に目的の眼鏡があるかどうかわかるほどレイアウトが明快だ。だが今回はライフスタイルショップに倣い、探す楽しみのある回遊性を取り入れた。既製のユニットシェルフを用いながら、収納や照明をオリジナルで製作して配置をランダムにすることで変化をつくった。また、ディスプレイには優しい素材感を持つパルプモールドを採用した」
改めて振り返ると、本当に様々なお店をつくってきた。経済合理性からはかけ離れ、一時期は効率の悪い経営に悩んだこともあった。それでも今となっては、その積み重ねこそがJINSブランドを形づくってきたのだと思う。建築を通じて、私は知らず知らずのうちに次の時代の可能性を探っていたのかもしれない。
そして今、また新しいJINSのスタイルを構築してもらうべく、案件を長坂さんにお願いしている。どんな提案が出てくるのか、今から楽しみでならない。(田中仁)
※次回は12月半ばに掲載予定


