まち・建築・ビジネス、田中仁の建築ヒストリー10:企業有志による「太陽の会」――店舗づくりを通してめぶいた前橋の建築家・木暮勇斗氏のセンス

Pocket

前橋市のまちづくりビジョンとして広く知られるようになった「めぶく。」。民間企業有志による「太陽の会」はこのビジョンに共鳴して誕生した。同会で、まちなかに出店しようという若者を応援することになり、その中で目に留まったのが前橋を拠点に活動する建築家、木暮勇斗氏のセンスだ。JINSの店舗デザインでもその実力の一端を発揮した。(ここまでBUNGA NET編集部)

前橋市内の馬場川通りから1本道を入った場所にあるクラフトビール店「ルルルなビール」。店舗設計をAANEの木暮勇斗氏とiroaiの神保匡志氏が手がけた(写真:竹沢佳紀)
「ルルルなビール」の1階醸造エリアの前に設けられた土壌広場(写真:竹沢佳紀)

 前橋には、明確なまちづくりのビジョンがない。その事実を知り、2015年、官民共創事業として地域の有識者など35人が集まり、「前橋ビジョン委員会」を設立した。

 ビジョンづくりにあたっては、ドイツ・ミュンヘンのブランドコンサルティング会社KMSチームに依頼した。彼らは前橋に滞在し、委員会メンバーとの個別面談を実施。さらに、市民約3000人へのアンケートを持ち帰って分析を行い、「前橋ビジョン “Where good things grow(良いものが育つまち)”」というコンセプトを導き出した。

 そして、前橋出身のコピーライターである糸井重里さんが、この英語のビジョンを「めぶく。」と解釈。2016年8月、前橋ビジョン発表会が開催された。ちなみに、前橋ビジョン「めぶく。」のボディコピーは以下の通りだ。

めぶく。
Where good things grow.

その芽は、まだ小さい。
風に吹かれ、雨を待ち、太陽の熱さにその身をあずける。
そしていつか、枝をつけ、葉を繁らせ、
強く太い幹となる日を夢見ている。
人は芽だ。この地は芽だ。そしてつながりは芽だ。
いまは幼い芽だけれど、未来の大樹を隠し持つ芽だ。
Where good things grow.

この地ではじまる、芽ぐみ。
ここから、よきものが伸びてゆく。
いくつもの芽が育ち、やがては大きな森をつくっていくだろう。
Where good things grow.

わたしたちは、この地の芽吹きのために、
未来に希望の森を見るために、
厳しくも優しい風になろう。
慈しみの雨になろう。
そして、なによりも熱い太陽になろう。
Where good things grow.

きっと、芽吹く。
前橋の大地の下にはたくさんの種が 、そのときを待っている。

太陽の会の初事業は、岡本太郎の《太陽の鐘》の誘致

 このビジョンに共鳴して、民間企業有志が集まり誕生したのが「太陽の会」である。地域の企業は、地域によって成り立っている。であれば、その地域に活力を生み出すために、利益の一部を還元することには合理性があるはずだ。地域が衰退すれば、その地域の企業だって元気が出ない。だったら、自分たちの街は自分たちでつくろう。

 そして、前橋ビジョン「めぶく。」にあるように、この地の芽吹きを助けるため、太陽のような存在として無償のエネルギーを投入しよう——それが太陽の会の思想だ。

 太陽の会は設立当初、会員企業の純利益1%、あるいは最低100万円を年会費として、見返りを求めない地域活動に拠出する仕組みでスタートした(現在は法人・個人いずれも年会費50万円)。会長は私が務めている(https://www.taiyonokai-maebashi.com/)。

太陽の会と市が連携して2018年、岡本太郎氏の作品である「太陽の鐘」を前橋の広瀬川河畔に誘致・移設した(写真:木暮伸也)
太陽の鐘の周辺デザインは建築家の藤本壮介氏が担当し、太陽の会が修復費用などを負担した(写真:木暮伸也)

 第1回目の事業は、岡本太郎の《太陽の鐘》の誘致だった。これは大阪万博「太陽の塔」の前年に制作された作品で、日本通運が開業した伊豆のレジャーランドに設置されていたが、閉園に伴い撤去・保管されていた。

 いずれどこかに「嫁入り」させたいと考えていた岡本太郎記念館の平野暁臣館長に、糸井重里さんが前橋の活動を紹介してくれたことで、日本通運が快く寄付を決断してくれた。

 ただし、修復や設置場所のランドスケープ整備には相応の資金が必要だったため、その費用を太陽の会が負担した。岡本太郎記念館の監修のもと、撞木(しゅもく)や全体設計は建築家の藤本壮介さんが担ってくれた。広瀬川沿いに設置された太陽の鐘は、見る人に「世間に負けるな、自分を生きろ」と鼓舞しているようにも感じられる。

馬場川通りの改修で実現へのハードルが高かった石上純也案

 第2回目の事業は、白井屋ホテル裏通りにあたる馬場川通りの改修である。ここは、車道・歩道・疏水が並ぶ約200メートルの通りだ。

 もともとは何の変哲もないアスファルト道路だったが、「街は半径200メートルを集中的に変えるだけで元気になる」という話を耳にしていたこともあり、白井屋ホテルの誕生によって感度が高まったこのエリアを、隣接して整備すればより良くなるのではないかと、具体的に動き始めた。

 当初は、コンセプトをとがらせた差別化されたまちづくりを目指し、建築家の石上純也さんに依頼した。しばらくして提示されたプランは、想像をはるかに超えるものだった。道路を地中深く掘り込み、地下に親水空間の歩道をつくり、その上を車道が通るという大胆な構想である。実現すれば、それだけで人を呼び込める可能性を感じさせる案だった。

 とはいえ、公共空間として実現するには現実的なハードルが高く、断念せざるを得なかった。その後、石上さんには民間プロジェクトでの協業をお願いしている。

「馬場川通りアーバンデザインプロジェクト」によって生まれ変わった白井屋ホテル周辺(写真:森清)
馬場川通りに面して立つ「ばばっかわスクエア」から改修後の通りを見下ろす(写真:森清)

 次にこのプロジェクトの実装を担ったのが、同じく民間資金で運営されている都市再生推進法人「前橋デザインコミッション(MDC)」である。構想を現実の都市空間へと落とし込むため、自治体と設計者、施工者、地域関係者の間に立ち、制度設計から実装までを粘り強く調整していった。

 その上で紹介されたのが、ランドスケーププラスの平賀達也さんだった。場所の文脈を丁寧に読み取った、実現可能性の高い素晴らしい提案が示された。しかし、民間が資金を投じる以上、多くの制度的・実務的な障壁が立ちはだかった。

 それでも官民の多くの関係者の努力が実を結び、赤レンガで舗装された親水性の高い道路空間が完成した。この馬場川通りアーバンデザインプロジェクトは、「緑の都市賞 内閣総理大臣賞」「まちづくりアワード 国土交通大臣賞」「第5回グリーンインフラ大賞」など、数々の賞を受賞し、現在も全国から視察が絶えない。

若者によるクラフトビール店の開業を太陽の会が資金面から支援

 さらに、「挑戦する若者を応援しよう」という流れが生まれた。

 竹内躍人くんという若者が、クラフトビール店をやりたいと相談してきた。当初はOEM供給を受ける計画だったが、事業として成立しないことが分かり、本気でビールをやるなら自ら醸造するしかない、という結論に至った。

 彼は醸造所で修行を重ねたのち、自分の店を構えることになったが、資金面の課題があったため、太陽の会が支援することになった。それが「ルルルなビール」の始まりである。

 その店舗設計を手がけたのが、地元・前橋を拠点に活動する建築家、AANEの木暮勇斗くんだった。街で顔を合わせて挨拶する程度の関係だったが、仕事を見るのは初めてだった。限られた予算の中で、センス良くまとめ上げていたことに感心した。トイレなど、思いがけない場所に大胆な色使いを施す遊び心も印象的だった。

「ルルルなビール」のコンセプトシート(資料:AANE、作成協力:舘孝幸)
通りから店舗の1階を見る。奥に見えるのがクラフトビールの醸造装置(写真:竹沢佳紀)
2階のバーエリア(写真:竹沢佳紀)
店舗2階のトイレ(写真:竹沢佳紀)
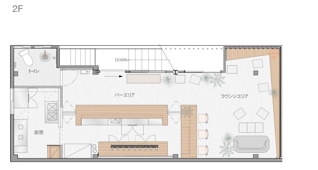
平面図(資料:AANE・iroai)

 一度、彼にJINSの店舗もお願いしてみたいと思い、前橋とも距離感の近い、西東京・田無の店舗設計を依頼した。条件は「誰もが気兼ねなく入りやすい、カジュアルな店」である。彼はその意図を非常にうまく空間に落とし込んでくれた。

 「本計画は、四方を通路に囲まれた特殊なテナント区画の特性を生かし、あえて『正面』をつくらず、全方向に開かれた店舗構成とした。受付を中心に据えたコア型プランにより、回遊性と発見性を生み、自然と人が引き込まれる空間を目指している。視野や色彩の効果を活用し、見る角度や歩く動線によって印象が変化する、感覚的で人間味のある体験をつくり出した。什器は全方向から見える開放的な構成とし、地域性や個性を織り込むことで、均質化しがちな多店舗展開の中でも独自性と愛着を育てるデザインとした。デザイン性とコスト、展開性の両立を図りながら、新しい店舗体験の可能性を提示している」(事務所コメント要約)

JINS LIVIN田無店。西武新宿線・田無駅の近くに立つ商業施設「リヴィン田無店」の1階にある(写真:高木康広)
JINS LIVIN田無店の什器アップ。同店では独自性と愛着を育てるデザインを意図した(写真:高木康広)
平面図。四方を通路に囲まれたテナント区画に出店(資料:AANE)

 今回の田無プロジェクトは、地元で奮闘している建築家を見いだし、実際に機会をつくったという点で、前橋ビジョン「めぶく。」の思想と通じるものがあると感じている。(田中仁)

※次回は3月半ばに掲載予定

田中仁(たなか・ひとし):株式会社ジンズホールディングス代表取締役会長CEO、一般財団法人田中仁財団代表理事。1963年群馬県生まれ。1988年有限会社ジェイアイエヌ(現:株式会社ジンズホールディングス)を設立し、2001年アイウエア事業「JINS」を開始。2014年群馬県の地域活性化支援のため「田中仁財団」を設立し、起業家支援プロジェクト「群馬イノベーションアワード」「群馬イノベーションスクール」を開始。同時に衰退していた地方都市・前橋のまちづくりに取り組み、2020年白井屋ホテルを開業し、現在も奮闘している(イラスト:宮沢洋)