日本では、近現代建築を「生かしながら変える」という成功体験が圧倒的に少ない。一般の人はまずそういうものを見たことがない。坂倉準三の旧羽島市庁舎があっさりと壊され、丹下健三の旧香川県立体育館が瀬戸際まで追い詰められているのも、一般の人が“別の形でいきいきと活用されている建築”を想像できないからだ。そんななか、坂倉準三の旧上野市庁舎(伊賀市旧本庁舎)がマル・アーキテクチャの設計で見事に再生されたのは本当にうれしかったし(こちらの記事)、この「高橋酒造 田野蒸溜所・交流施設」(改修設計:yHa architects)にも、もう1つの方向性を広げるものとして勇気づけられた。

場所は熊本県人吉市田野町。「くまもとアートポリス」のプロジェクトだ。アートポリスといっても公共建築ではなく、球磨焼酎メーカーの高橋酒造(本社:熊本県人吉市合ノ原町)が新事業として立ち上げたウイスキーの蒸溜所である。設計はyHa architects。同事務所は過去に木造の酒蔵をギャラリーに改修したことがあり、その経験を踏まえてくまもとアートポリスチーム(コミッショナー:伊東豊雄、アドバイザー:桂英昭、末廣香織、曽我部昌史の各氏)から設計者に推薦された。

yHa architectsを平瀬祐子氏とともに共同主宰する平瀬有人氏が案内してくれた。
冒頭に、近現代建築活用の「もう1つの方向性」と書いたのは、既存の建物がいわゆる「有名建築」ではないからだ。2棟のうちの1棟は木造だが、戦前につくられた文化財的価値の高い木造というわけでもない。1988年竣工、つまりバブルのころにつくられた小学校。しかし地域の人にとっては愛着のある風景だ。これを、聞いたことのないやり方で再生した。
まずは、平瀬氏からもらった概要資料(太字部)とともに写真を見ていこう。

■事業概要
建設地:熊本県人吉市田野町3316-4
事業主体:高橋酒造
設計:yHa architects
施工:速永工務店
改修規模:1,278.32㎡(増築部 380.74㎡)
1 階:890.56㎡ 2 階:387.76㎡
旧田野小学校校舎等を蒸溜所、地域交流施設に改修
■豪雨被害からの創造的復興
2020年7月の九州豪雨で甚大な被害を受けた熊本・人吉球磨地域で、球磨焼酎メーカーの高橋酒造による新たな事業展開として整備するウイスキー蒸溜所・地域交流拠点の計画です。熊本県のくまもとアートポリスプロジェクトにも採用され、後世に残り得る文化的資産を創り、地域への波及効果を生み出すことなどを通じ、豪雨被災からの創造的復興に資することが期待されています。

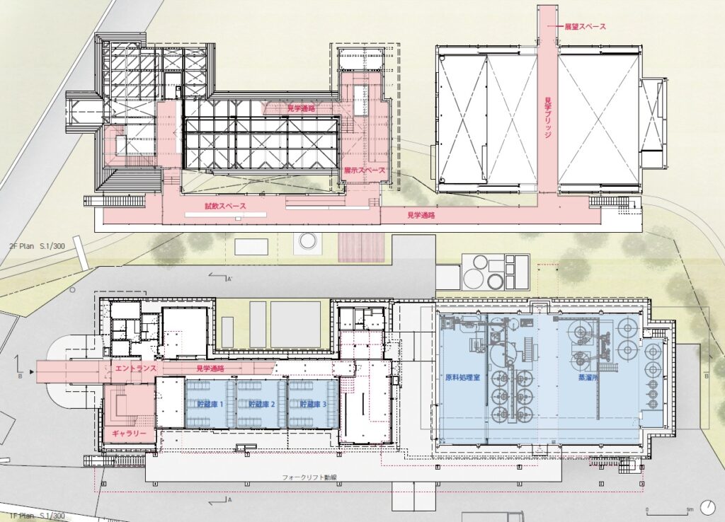
■リニアな見学施設が蒸溜所(体育館)と貯蔵庫(校舎)をつなぐ
豊富な水資源と美しい田野高原や水田の景観に恵まれる田野地区(標高680m)の旧・田野小学校を田野蒸溜所・地域交流施設に再生する計画です。敷地には1988年竣工(築34年)の木造の校舎と鉄骨造の体育館が建っており、南側にはグラウンド越しに美晴山の風景が広がります。計画では体育館を〈蒸溜所〉に、校舎教室を〈貯蔵庫〉に改修し、グラウンド側にリニアな見学施設を増築して2棟をつなぎます。

■〈物質的記憶〉〈郷愁的記憶〉〈地域的記憶〉─3つの記憶を継承する建築
地域の方々の愛着があり、校舎北側の水田に映える姿が印象的な〈赤い屋根〉という物質的記憶、〈小学校〉の建材に内包される郷愁的記憶、〈田野高原〉の風景の骨格をなす地域的記憶、という3つの記憶を継承するような改修によって、廃校となった小学校の利活用をします。屋根裏の木架構を活かして一部2階の床を新設することで、古い木の構造や教室のイメージは継承しつつ、新旧が一体となるようなデザインとしています。


■上下の2つの異なる機能ゾーンをつくりだすリニアな増築ボリューム
校舎入口のエントランスから教室前の長いスロープ状の見学通路を歩き、昔の教室を再利用した貯蔵庫や展示スペースを見学しながら2階へ上ります。体育館を改修した蒸留所の2階見学ブリッジから1階の生産設備を見学することができ、増築された見学施設の試飲スペースからは田野高原の美しい風景が望めます。

一方、1階は蒸溜所(体育館)のほか貯蔵庫(校舎教室)などの生産施設ゾーンとし、2階の見学ゾーンとの動線を分離し、リニアな増築ボリュームが2つの異なった機能ゾーンをつくります。





新設した床はすべて既存の構造から独立している!
この概要資料はおそらく一般の人用につくられたもので、筆者が「聞いたことがない」と思った部分の核心にはほとんど触れられていない。それは、説明文の中に「グラウンド側にリニアな見学施設を増築して2棟をつなぎ」「屋根裏の木架構を活かして一部2階の床を新設する」と、さらっと書かれていた部分だ。
新設された床は、すべて既存部から構造が独立しているのである。

グラウンド側のブリッジ部分が独立しているのはわからなくもない。それと連続する建物内のスロープや2階床も、新たに基礎をつくって、既存構造に負荷をかけないように建てたというのだ。こんな手法を筆者は聞いたことがない。


実は、既存建物の構造計算書が残っていなかったのだという。既存部と構造を一体化するなら、全調査してゼロから再設計だ。仮に計算書があったとしても、特に木造の方は、一体で増築したら原形がないほど手を入れることになっただろう。

既存の柱梁を縫うように新たな床が加えられたことで、結果的に、やや不自然にも思える空間体験がとても面白い。欲をいえば、構造が独立しているということを「言われなくてもわかるような見せ方」にしてくれていたらとも思うが、そんなことを思うのは建築系の人間だけかもしれない。


多くの人にこの建築を見てほしいのだが、一般見学は「来春以降」とのこと。ウイスキーの醸造には3年かかるそうで、現段階ではここで生まれたウイスキーを味わうことができないのだ。「見学開始時期などの詳細につきましては、高橋酒造公式ホームページおよび、田野蒸溜所ホームページにて改めてご案内いたします」とのことなので、暖かくなったら公式サイト(こちら)をのぞいて見てほしい。
筆者は、「高橋酒造」と聞いて最初ピンとこなかったのだが、あの「白岳しろ」の会社だ。そんな会社が新たにつくるウイスキー、うまいに決まっているではないか。人吉発の新たなウイスキーが、この建築の素晴らしさとともに日本中に、いや世界へと発信されるのを心待ちにしたい。(宮沢洋)


